Gewerbeimmobilie > Bürofläche
Zu Vermieten
Eine ganze Büroetage am Rande des Röthelheimparks
91052 Erlangen
6.372 €
A2307
1969
531 m²
- Kaltmiete: 6.372 €
- Kaution: 19.116 €
- Mieterprovision:
-
Ansicht
-
Ansicht Büro
-
Ansicht Büro
-
Ansicht Büro
-
Ansicht Büro
-
Ansicht Büro
-
Ansicht Büro
-
Ansicht Büro
-
Sozialbereich
-
Sozialbereich
-
Kleinküche
-
Flur
-
Flur
-
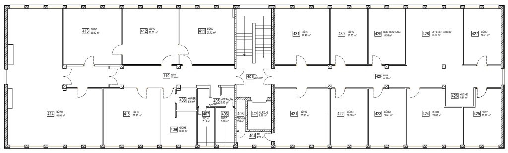
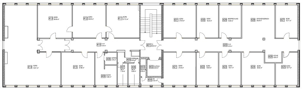
Grundriss 4. OG
-
Die hellen Büroräume liegen im 4. Obergeschoss eines Bürogebäudes am Rande des beliebten Röthelheimparks. Das Stadtzentrum von Erlangen erreichen Sie in nur wenigen Minuten. Ein Lastenaufzug, der auch für Personenbenutzung freigegeben ist, steht zur Verfügung. Dank Glasfaseranschluss ist eine schnelle Internetverbindung garantiert. Für E-Fahrzeuge kann eine Wallbox zu einem speziellen Mitarbeitertarif genutzt werden. Am Objekt stehen begrenzt Pkw-Stellplätze zur Verfügung, die bei Bedarf angemietet werden können. Die Anmietung von Lagerflächen im Untergeschoss wäre ebenfalls möglich.
Auf Wunsch können im 4. Obergeschoss auch nur rund 264,43 m² Bürofläche angemietet werden.
Die monatliche Nebenkostenvorauszahlung inklusive (!) Strom beläuft sich auf 3,50 EUR/m². -
Flächen
- Bürofläche: 531 m²
Zustand & Erschließung
- Baujahr: 1969
Sonstiges
- Immobilie ist verfügbar ab: kurzfristig nach Vereinbarung
-
- Energieausweis-Art: Bedarf
- Energieausweis gültig bis: 08.12.2026
- Endenergiebedarf: 76,50 kWh/(m²*a)
- Primärenergieträger: Fernwärme
- Baujahr (Energieausweis): 1969
- Energieausweis-Ausstellungsdatum: 09.12.2016
- Energieausweis-Jahrgang: ab Mai 2014
- Energieausweis-Gebäudeart: Nichtwohngebäude
-


























