Wohnimmobilie > Wohnung
Zu Verkaufen
Notartermin vereinbart × Entspanntes Wohnen im schönen Dechsendorf
91056 Erlangen
283.000 €
A2308
1985
81 m²
3
- Kaufpreis: 283.000 €
- Käuferprovision: Bei Abschluss eines Kaufvertrages erlauben wir uns Ihnen 3,57% inkl. MwSt. aus dem beurkundeten Kaufpreis als Provision in Rechnung zu stellen.
- Stellplatzkaufpreis (Garage): 15.000 €
-
Nordansicht
-
Südansicht
-
Wohnen / Essen
-
Wohnen / Essen
-
Zimmer 2
-
Zimmer 2
-
Zimmer 2
-
Zimmer 3
-
Küche
-
Badezimmer
-
Badezimmer
-
Dachterrasse
-
Dachterrasse
-
Westbalkon
-
Abstellraum bei Westbalkon
-
Dachboden
-
Waschkeller
-
Kellerabteil
-
Garage
-
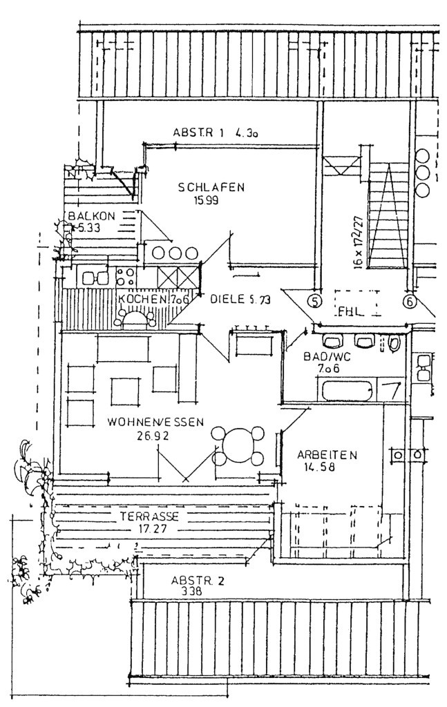
Grundriss
-
Die 3-Zimmer-Wohnung befindet sich im 2. Obergeschoss (oberstes Wohngeschoss) eines gepflegten Mehrfamilienhauses. Die Zimmer sind mit Massivparkett ausgestattet. Zwei Zimmer zeigen nach Süden, ein Zimmer nach Westen. Vom Wohn-/ Esszimmer betritt man die herrliche Dachterrasse. Auf dieser großzügigen Dachterrasse kann man die Sonne ungestört genießen. Vor dem Westzimmer befindet sich ein Balkon. Zur Eigentumswohnung gehören zwei große Abstellräume, die über die Dachterrasse bzw. den Westbalkon erreichbar sind. Das innenliegende Badezimmer hat eine Badewanne, eine Dusche, ein WC und ein Waschbecken. Der sich über der Wohnung befindliche Dachboden darf unter Ausschluss der anderen Wohnungseigentümer genutzt werden. Die eigene Waschmaschine findet im Waschkeller ihren Platz. Zur Wohnung gehören zudem ein eigenes Kellerabteil und ein Kfz-Stellplatz (15.000 EUR) in der hauseigenen Garage. Die Ölzentralheizung wurde im Ende 2022 erneuert.
Die Eigentumswohnung ist nicht vermietet und steht dem Erwerber zur freien Verfügung.
Leider hat immowelt.de gerade ein Problem mit der Darstellung unserer Fotos. Gute Objektfotos finden Sie auf unserer Homepage: https://amer-immobilien.de/immobilien/entspanntes-wohnen-im-schoenen-dechsendorf. -
Flächen
- Wohnfläche: 80,67 m²
- Zimmer insgesamt: 3
- Garagenstellplätze: 1
Zustand & Erschließung
- Baujahr: 1985
-
- Energieausweis-Art: Verbrauch
- Energieausweis gültig bis: 02.07.2030
- Energieverbrauchskennwert: 139,80 kWh/(m²*a)
- Warmwasser im Energieverbrauch enthalten: ja
- Primärenergieträger: Öl
- Energieeffizienzklasse: E
- Baujahr (Energieausweis): 1985
- Energieausweis-Ausstellungsdatum: 03.07.2020
- Energieausweis-Jahrgang: ab Mai 2014
- Energieausweis-Gebäudeart: Wohngebäude
-
Dechsendorf ist ein westlicher Stadtteil von Erlangen und liegt etwa acht Kilometer vom Stadtzentrum entfernt. Er ist gut mit dem ÖPNV erreichbar und präsentiert sich als ruhiger, teilweise dörflich geprägter Stadtteil mit familiärem Charakter. Der bei Spaziergängern, Joggern und Radfahrern beliebte Dechsendorfer Weiher ist nur wenige Minuten entfernt. Der Gewerbepark Heßdorf mit u. a. Aldi, REWE und dm-drogerie markt ist nur ein Katzensprung entfernt.






































